For Sale: Stand Alone House In the German Colony on Gdalyahu Alon Street

  • ₪35,000,000

Overview

Property ID: 52193
  • For Sale
  • Property Type
  • 559 Sqm
  • Area Size

Description

In the German Colony on the quiet Gdalyahu Alon Street, this is a unique and rare, private house that sits on a lot of 559 SQM. With its high, arched, and dome ceilings, this house is exceptional and has a lot of character.

Facing the south this house has plenty of natural light and air. Looking out from the balconies and windows is a pastoral view of the German Colony surrounded with towering, historic trees.

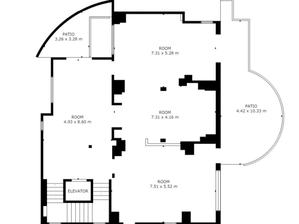
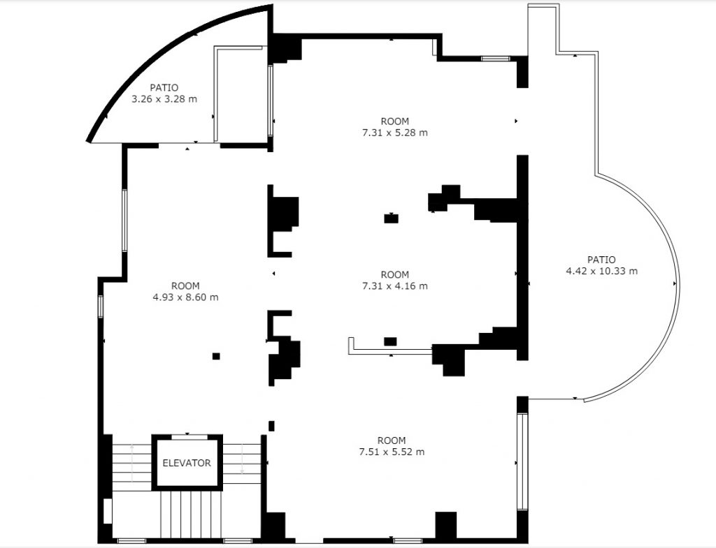
The house stands as a shell. Built on three levels with an additional basement, attic, and a garden of 390 SQM.

Located on the border of the Talbieh neighborhood and the German Colony. Across the street is The Moon Grove on one side and The Nature Museum on the other, which is surrounded by blossoming flowers and plants.

 

Total built 479 SQM net (Gross can be up to 800 SQM).

Main level: 163 SQM with an exit to the garden.

First floor: 147 SQM with an exit to approx. a 50 SQM balcony.

Second floor: 101 SQM with an attic and approx. a 75 SQM rounded terrace balcony.

Basement: 68 SQM.

 

Asking Price: 35 Million NIS.

  • Address: Gdalyahu Alon St 1, Jerusalem, Israel

Details

Updated on November 27, 2025 at 2:19 pm
  • Property ID 52193
  • Price ₪35,000,000
  • Property Size 559 Sqm
  • Property Type For Sale
  • Property Status Available

360° Virtual Tour

Contact Information

View Listings

Enquire About This Property

Compare listings

Compare
Your subscription could not be saved. Please try again.
You Have Subscribed to the Alon Central Newsletter!

Sign-Up for the Alon Central Newsletter

Be the first to know about new properties on the market for Sale and Rent!