For Sale: Luxurious and Unique Triplex Apartment in Bayit Vegan Valley
- ₪17,800,000
Overview
- For Sale
- 6
- 4.5
- 515 Sqm
Description
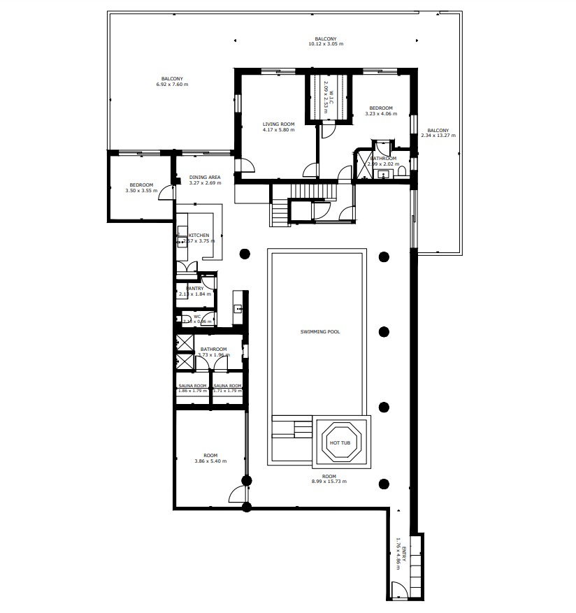
On Shaharai St. 27 in Bayit Vegan Valley. This luxurious and unique triplex apartment (net 515 SQM, and gross about 1000 SQM). This triplex has an exclusive entertainment level which includes many unique high-end amenities.
The ‘Entrance Level’ has a large parking area (76 SQM), two storage rooms, and the pool service area.
The ‘Entertainment Level’ (about 300 SQM) offers a heated pool, built-in jacuzzi, gym, wet and dry saunas, bar, treatment room, and an exit to a courtyard (123 SQM).
On this level is a guest unit, which features a living room and a master bedroom with a walk-in closet and full bathroom.
On the “Main Level” (about 200 SQM) is a living room, with an exit to a balcony (66 SQM) facing a serene view. A dining room, and a kitchen with access to an additional balcony (12 SQM). In addition, there are three master bedrooms, a bathroom, and a powder room.
Total: 6 Bedrooms, and 4.5 full Bathrooms (In addition to toilet and showers by the pool).
Some of the conveniences in the house are a soundproof home theatre, a private elevator, underfloor heating, Mitsubishi VRF air conditioning, extra parking for guests, a locker room, and a shower with massaging jets near the pool.
Asking Price: 17.8 Million NIS
Address
Open on Google Maps-
Address: Shaharai St 27, Jerusalem, Israel
-
City: Bayit Vegan, Jerusalem
Details
Updated on November 27, 2025 at 2:16 pm-
Property ID 52373
-
Price ₪17,800,000
-
Property Size 515 Sqm
-
Bedrooms 6
-
Bathrooms 4.5
-
Property Type For Sale
-
Property Status Available
